// Road Design

Road Design

Road Design 1
Road Design 2
Road Design 3

Sustainable city - yas island Internal & external roads & infrastructure

Road Design 4
Road Design 5
Road Design 6
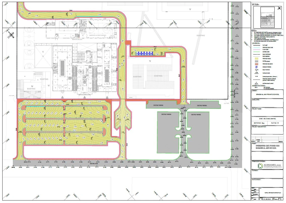
Road Design 7
Road Design 8

Bawabt Sharq villa development complex -AOR

Road Design 3
Road Design 4

Get a Free Consultation.
We're Ready to Meet All Your Needs!

logo

Established in 2012 in Abu Dhabi, Al Shamil Design Engineering Consultant specializes in villa, building, road, and infrastructure design. The firm is classified for architectural and road design/supervision and has executed numerous projects, aligning with Abu Dhabi’s 2030 vision. With a team of experienced engineers and architects, we leverage cutting-edge technology and sustainable practices to deliver innovative solutions tailored to evolving client needs.

Get In Touch

UAE — AbuDhabi
Defense road, near main bus station

info@alshamilconsultant.net totaldesign9@yahoo.com (+971) 2 677 3015 (+971) 50 783 6089